Menü

BÜNDNIS 90/DIE GRÜNEN

Herzogtum Lauenburg

Alte Meldungen aus der Spalte "Home - Aktuelles"

16. Dezember 2010: Gemeindevertretung tagt zum Jahresausklang

Die letzte Sitzung der Gemeindevertretung brachte einige bemerkenswerte Ergebnisse:

  • Der LIDL-Markt darf entgegen den Festsetzungen des B-Plans Werbemittel anbringen.  
  • Die Hundesteuer wird auch für Geringverdiener erhöht. Dies findet nicht unsere Zustimmung.
  • Die Unterstützung von Haushalten bei der Gebäudesanierung ("Klimaschutzprogramm") sollte abgeschafft werden. Wir plädieren für eine befristete Aussetzung und haben damit Erfolg.
  • Der Grundsteuersatz wird von 300 auf 350 Prozent angehoben. Wir scheitern mit unserem Antrag, für Grundstücksbesitzer mit Einkommen unterhalb der Armutsgrenze die Erhöhung auszusetzen.
  • Zum Haushalt: Die Kommune muss eine knappe Million Gewerbesteuer zurückzahlen und bleibt weiterhin verschuldet.
  • Die Gemeindevertretung will sich nicht auf eine Übernahme des Mühlenweges festlegen.

Zum Bericht über die Sitzung


Seit über einem Jahr machen wir uns für eine Instandsetzung des Waldweges von Neu-Börnsen nach Wohltorf/Aumühle stark. Der Weg ist im Besitz des Kreises. Inzwischen hat der Kreis die Sanierung zugesagt. Unsicher sind aber die Eigentumsverhältnisse danach. Der Kreis will den Weg abgeben. Er hat den Gemeinden Börnsen und Wohltorf die ca. 2 km lange Strecke als Schenkung angeboten. Weil aber die Bürgermeister bisher mit der Annahme zögern, zieht der Kreis auch eine Übertragung an die Bismarck'sche Forstverwaltung in Betracht.

Dies darf nach unserer Ansicht nicht geschehen. Der Besitzwechsel in Privateigentum würde nicht nur der historischen Vorgabe wiederstreben, die Nutzung für die Öffentlichkeit zu sichern. Das würde auch bedeuten, dass der Weg mit der Unsicherheit zur Nutzung behaftet ist. Ein privater Weg kann gesperrt werden. Auch wären Gebühren denkbar. Die weitere Pflege des Weges wäre nicht gesichert. Soweit darf es die öffentliche Hand, repräsentiert durch die Gemeinden Börnsen und Wohltorf, nicht kommen lassen. Privatisierungen sollten nicht ohne Not vollzogen werden, insbesondere dann nicht, wenn es sich wie beim Mühlenweg um eine Schenkung handelt.

6. Dezember 2010: Ausschuss berät über Bebauung und Ehrenmal

Von Ortsgestaltung kann keine Rede sein

Die Börnsener Baupolitik ist seit Jahren geprägt durch Flickschusterei. Am Rand des Ortes werden mal hier, mal dort Baugrundstücke angefügt. Dabei wäre dies eigentlich erst der zweite Schritt. Der erste, die Planung einer Struktur und die Gestaltung des Ortes mit zentralen Einrichtungen, wird hintangestellt. Eine weitere Auffälligkeit ist das Tempo, in dem ein Neubaugebiet nach dem anderen durchgezogen wird. Das alte ist noch nicht vermarktet, da kommt schon das nächste.
Börnsen hat kein erkennbares Zentrum. Dem Ort fehlen ein Treffpunkt und eine Mehrgenerationeneinrichtung. Die Errichtung neuer Baugebiete steigert das Problem noch. Der ständige Zuwachs an Einwohnern verschärft den Bedarf an sozialen Einrichtungen. Das nicht vorhandene Zentrum spiegelt sich auch in dem gescheiterten Wunsch wieder, das Ehrenmal an einen neuen attraktiveren Platz zu verlegen. Es gibt ihn nicht.
Zum Bericht aus dem Planungsausschuss

Die Karte zeigt die Entwicklung des Ortes seit 1950

1. Dezember 2010: Steuern und Abgaben werden erhöht

Auf der Sitzung des Finanzausschusses wurde deutlich, dass diverse Steuern und Abgaben für die Bürger ab Januar 2011 erhöht werden. Mit ziemlicher Sicherheit wird die Gemeindevertretung die Anhebung der Grund- und Hundesteuer am 16. Dezember beschließen. Hauptgrund dafür ist die chronische hohe Verschuldung der Kommunen, in erster Linie verursacht durch die in den letzten Monaten beschlossenen Steuerrechtsänderungen der Regierung in Berlin. Diese belasten die Kommunen in Schleswig-Holstein jährlich mit über 280 Millionen Euro.

Wir stehen den Steuererhöhungen in den Kommunen sehr skeptisch gegenüber. Insbesondere deshalb, weil bei der Steuererhebung eine starke soziale Schieflage herrscht. Ob in Bund oder Land, aktuell werden immer mehr die sozial Schwachen zur Kasse gebeten, während die Vermögenden verschont werden.
Bericht aus dem Finanzausschuss

29. November 2010: Details zum LIDL-Markt

Auf der Sitzung des Bauausschusses teilte der Vertreter des Investors der neuen Discountermärkte LIDL und HOL'AB mit, dass Bepflanzungen noch vorgenommen werden sollen. Allerdings wird es keine PKW-Scheinwerfer-Blende geben. Ein Teil des Knicks wurde als Sichtschutz zunächst stehen gelassen.
Zum Protokoll aus dem Bauausschuss

15. November 2010: Lohe wird Naturerbe

Bei einem Pressetermin in Wentorf teilte der Bundestagsabgeordnete der CDU Norbert Brackmann mit, dass die Wentorfer Lohe in das Programm Nationales Naturerbe aufgenommen werden soll. Die Übertragung soll Anfang 2011 durch einen Vertrag besiegelt werden. Verbunden mit der Aufnahme in das Programm ist die Übertragung der Fläche von Bundesbesitz in das Eigentum des Landes Schleswig-Holstein. Dort geht es zu Händen der Stiftung Naturschutz, die das Gebiet zu einer Natur- und Naherholungsfläche weiterentwickeln will.

Bei dem Pressetermin ist uns aufgestoßen, dass sich die CDU das Verdienst der Übertragung auf die Fahnen schreibt und dass sich die lokale CDU-Prominenz für diese Aktion feiern ließ. Dabei hat der Vorgang mit der CDU eigentlich nur soviel zu tun, dass der Bundestagsabgeordnete Mitglied der Haushaltskommission des Bundes und des Verwaltungsrates der Bundesimmobilienanstalt (BIMA) geworden ist. Die Vorarbeit der Übertragung in das Programm Naturerbe liegt viele Jahre zurück, wurde von Naturschutzverbänden vorbereitet und 2005 in die Koalitionsvereinbarung von CDU und SPD geschrieben. Allein das Gezerre bei der Flächenauswahl sowie Unstimmigkeiten zwischen BIMA und dem Land Schleswig-Holstein haben eine vorzeitige Umsetzung verhindert.

In die Zeit des Zögerns fiel dann der Holzeinschlag im Winter 2007/2008. Entgegen einer Abmachung zwischen BIMA und Bundesumweltministerium, Flächen die für das Naturerbe vorgesehen sind, nicht zu entwerten, wurde diese Entwertung in Form einer beispielslosen Fällaktion vorgenommen. Die CDU hat damals trotz mehrfacher Appelle weder im Land noch im Kreis unsere Bemühungen um eine verträgliche Holzentnahme unterstützt. Jetzt nach der Entwertung fällt die Schenkung um so leichter...

Wir haben die Vorgänge in der Lohe seinerzeit umfangreich dokumentiert, siehe dazu den Link Die Lohe

3. November 2010: Einwohnerversammlung im Schnelldurchgang

Bei der diesjährigen Einwohnerversammlung im Bürgerhaus fanden die vorgegebenen Themen eher weniger Interesse. Stattdessen gab es Proteste gegen aktuelle Baumaßnahmen:

  • Straßensanierung
    Der erste bezog sich auf die Straßensperrung im September. Die Vollsanierung der Börnsener Straße hatte sich über 5 Wochen hingezogen. Dies sei zu lang gewesen. An vielen Tagen sei überhaupt nicht gearbeitet worden. Die Neu-Börnsener hätten sich "abgekoppelt" gefühlt. Man sei nicht informiert und einbezogen gewesen. Der Bürgermeister hielt dem entgegen, dass auf das Ausschreibungsverfahren und die Auftragsvergabe kein Einfluss genommen werden konnte. Die ausführende Firma hätte den Termin der Sanierung auch nur kurzfristig mitgeteilt.
  • LIDL-Markt
    Ein weiterer Punkt war der LIDL-Neubau. Den Neu-Börnsener Anliegern sei versprochen worden, dass dort kein Discounter angesiedelt würde. Es sei unverständlich, dass fast die ganze Gemeindevertretung für dies Projekt gestimmt habe. Wegen des erwarteten Verkehrsaufkommens werde man ständig Scheinwerfer im Wohnzimmer haben. Ein Lärmschutz sei notwendig. Dem hielt der Bürgermeister entgegen, dass in einem Mischgebiet das Gebäude rechtlich nicht zu verhindern gewesen sei. Lärmschutz sei auf Grund gesetzlicher Bestimmungen nicht möglich. Der Standpunkt der Grünen dazu findet sich weiter unten beim Stichtag 20. Oktober.

Weitere Anliegen der Bürger:

  • Die Geschäftsführung des Energieversorgers GWB GmbH wurde zu den Gas- und Strompreisen gefragt. Sie sagte, dass der Gaspreis der GWB niedriger als bei der Konkurrenz im Umland. Man belege derzeit bezogen auf den Preis Platz 8 bundesweit. Man müsse auch bedenken, dass der GWB effektiver und umweltfreundlicher arbeite als beim Einsatz einer privat betriebenen Gasheizung, weil im Gas-Blockheizkraftwerk die Energie nahezu vollständig genutzt werde. Der GWB erzeugt dabei eigenen Strom, den er den Börnsener Bürgern zu einem günstigen Preis anbiete.
  • Ein Bürger berichtet, dass trotz Straßensanierung am Steinredder seien schon wieder Löcher in der Straße aufgetreten seien. Der Bürgermeister entgegnet, dass die Arbeiten noch nicht abgenommen seien. Man sei nicht zufrieden mit der Ausführung durch die Straßenbau-Firma.
  • Eine Bürgerin moniert, dass am Mühlenweg Fußgänger wegen überhängender Knickäste nur schlecht den Autos ausweichen können. Der Bürgermeister sagt, dass die Gemeindearbeiter nicht eingreifen können, da der Knick einem Landwirt gehöre und dieser den Knick an eine holzverarbeitende Firma verkauft habe. Diese warte aber noch mit den Arbeiten. Der Bürgermeister kündigt an, handeln zu wollen.
  • Der sanierte Teil der Börnsener Straße wird keinen Mittelstreifen bekommen, da dies angeblich die Autofahrer animiert, schneller zu fahren.
  • Am Rothehausweg kommen die Müllfahrzeuge nicht zu den Häusern. Ältere Anlieger hätten Probleme, die Abfallbehälter zum Sammelpunkt am Straßeneingang zu bringen. Der Bürgermeister entgegnet, dass die Abfallwirtschaftsgesellschaft die Straße wegen der Enge nicht befahren kann. Er will jetzt das Problem in der Gemeindevertretung behandeln.
  • Anlieger des Dänenweges haben ein ähnliches Problem. Dort können wegen der Enge des Weges und insbesondere bei Glätte  die Müllfahrzeuge häufig auch nicht vor die Haustür fahren.

Mitteilungen des Bürgermeisters:

  • Es gibt Überlegungen zum Bau eines Arztzentrums mit Apotheke auf dem Parkplatz an der Tankstelle. Dies seien bisher aber nur Überlegungen, noch keine Planungen.
  • Börnsen will einen Seniorenbeirat einrichten. Ein erstes Treffen gibt es am 18. November um 20 Uhr im Rathaus. Dort wird die Wentorfer Seniorenbeiratsvorsitzende über die Seniorenarbeit berichten.
  • Börnsen plant den Bau einer neuen Sporthalle. Aktuell wird von einem Mitglied des Bauausschuses der Platzbedarf ermittelt.

27. Oktober 2010: Elternbeiträge in der Kita

Neuregelung steht noch aus

Der von uns angestrebte Versuch, die Elterngebühren für die Kita sozialverträglicher zu gestalten, geht in die nächste Runde. In der Sitzung des Kultur- und Sozialausschusses kam von der Kämmerei des Amtes der Einwand, eine Sozialstaffel wäre willkürlich und damit nicht gerichtsverträglich. Dieser Einwand, wie auch die möglichen neuen Eckwerte der Einkommensbemessungsgrenzen, sollen jetzt geprüft und dann weiter erörtert werden.
Zum Bericht aus dem Sozialausschuss

20. Oktober 2010: Gemeindevertretung segnet LIDL-Zufahrt ab

Die Gemeindevertretersitzung hatte ein umfangreiches Programm. Wichtigster Punkt war die Zustimmung zum Umbau der LIDL-Zufahrt am Bornbusch.
Zum Bericht

Der Bau des LIDL-Marktes hat Veränderungen in der Erschließung nach sich gezogen. Wegen des erwarteten hohen Verkehrsaufkommens ist eine einspurige Wohnstraße nicht mehr ausreichend. Sie wird auf zwei Spuren erweitert. Die Verkehrsführung ist jetzt so, dass sowohl Kunden als auch Lieferanten für LIDL und den Getränkemarkt daneben die Straße Am Bornbusch bis zum Ende durchfahren müssen, um auf den Parkplatz zu gelangen. Dies wird eine Belästigung für die Anwohner der Straße nach sich bringen, die so von ihnen nicht erwartet werden konnte. Aus unserer Sicht ist diese Zusammenführung von Wohnen und Gewerbe eine Fehlplanung. Spätestens nach dem Erwerb des Gewerbegrundstückes durch LIDL hätte für den Standort des Verkaufsgebäudes und die Zufahrt eine andere Lösung gefunden werden müssen. Auch wäre es richtig gewesen, die Anlieger in die Planung einzubeziehen. Wir haben im Gemeinderat gegen diese Maßnahme gestimmt.

Der Bauplan für die ehemalige Koppel wurde von der Gemeindevertretung vor ca. drei Jahren einstimmig gefasst. Grüne waren damals noch nicht in der Gemeindevertretung.

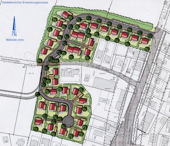
4. Oktober 2010: Bauen auf dem Acker – es geht weiter

In der Sitzung des Planungsausschusses wurde der neue Entwurf für den B-Plan 9 (Fleederkampredder/Börnsener Straße) vorgestellt. Auf der Vorlage (siehe Abbildung) sind 33 Wohneinheiten zu sehen. In der November-Sitzung des Planungsausschusses sollen die Meinungen bzw. Änderungswünsche der Fraktionen erörtert werden.

24. September 2010: Bürgerhaus – Solardach fast fertig

Die Photovoltaikanlage auf dem Bürgerhaus ist da! Seit Montag dieser Woche verlegt die Firma B&Q Dachbau die Solarmodule. Am Abend sollen alle Platten liegen. Die Restarbeiten folgen in der nächsten Woche, so dass die Anlage rechtzeitig vor dem 1. Oktober in Betrieb gehen kann. Damit kommt Börnsen in den vollen Genuss der bis zu diesem Zeitraum gewährten Vergütung für Solarstrom. Wir bedanken uns bei allen, die zur schnellen Umsetzung des Bauauftrags durch die Gemeindevertretung beteiligt waren: Das Bauamt aus dem Amt Hohe Elbgeest, der Planer Jörn Fleer und schließlich die ausführende Firma. Damit haben wir unser Projekt "Sonnenstrom für Börnsen" erfolgreich abgeschlossen.

18. September 2010: Großdemo gegen Atomkraft in Berlin

Ein beindruckendes Erlebnis: Das war Berlin am 18. September 2010! Einhundertausend Demonstranten zeigten der Regierung ihre Empörung über den schmutzigen Deal zur Verlängerung der Laufzeiten der Atomkraftwerke zwischen den Atomkonzernen und der CDU-/FDP-Regierung. Wir waren dabei. Das Bild zeigt die Fraktionsvorsitzende der Börnsener Grünen vor dem Alex.

8. Juli 2010: Gemeindevertretersitzung – Grüne aktiv bei brütender Hitze

Außer Verwaltungsvorlagen zur Tagesordnung wurden fast allein nur Grüne Anregungen, Klarstellungen und Fragen vorgelegt. Dies war im Vorhinein und am Abend mit erheblicher Arbeit, verbunden:

  • Stundenlanges Lesen von Unterlagen, Nachfragen und Telefonieren zur den Vorgaben und Ausarbeiten von Änderungsvorschlägen,
  • Zweieinhalbstunden-Sitzung bei 35 Grad C im nicht klimatisierten Bürgerhaus.


Bei so viel Einsatz blieben Grüne Erfolge nicht aus: 

  • Die Neufassung der Satzungen für die gemeindlichen Kitas wurde verabschiedet. Auf unsere Bedenken hin wurde beschlossen, für die nächste Sitzung des Kultur- und Sozialausschusses über die Einkommensstaffelung neu zu beraten. Wir werden dort eine stärkere soziale Komponente einbringen, damit sich die Gebühren je nach Elterneinkommen gerechter verteilen.
  • Im Beschluss über eine mögliche Bürgerbeteiligung an der GWB konnten wir einen Zusatz anbringen, der die Option auf eine Beteiligung nicht vollkommen abwürgt. Der Bürgermeister hatte zunächst die Formulierung im Beschlusstext offen gelassen. Die Mehrheit der Vertreter ließ aber durchblicken, dass sie eine Bürgerbeteiligung für nicht sinnvoll hält. Vorausgegangen war in der letzten Gemeindevertretersitzung eine Sachinformation durch einen Wirtschaftsfachmann mit der aus unserer Sicht einseitigen Empfehlung, auf eine Bürgerbeteiligung zu verzichten. Vorstellbar sei, als Unternehmensform die ‚Stille Gesellschaft', bei der der Gesellschafter ein Kontrollrecht, jedoch kein Widerspruchsrecht hat. Unsere Meinung: In Deutschland existieren viele Modelle von Bürgerbeteiligung an kommunalen Energieunternehmen. Dies zeigt die Bedeutung und Sinnhaftigkeit solcher Modelle. Wir halten es für schlüssig, dass bürgerliches Kapital an einer kommunalen GmbH nicht nur hinderlich, sondern hilfreich sein kann.
  • Im Rahmen der Erörterungen um den Sporthallenbau haben wir noch einmal dargestellt, dass das von uns in die Diskussion gebrachte Finanzierungsmodell eines Architekten nicht wie in der Börnsener Rundschau geschrieben nur für die Photovoltaikanlage gilt, sondern in der Tat für die ganze Halle. Wir planen jetzt, den Architekten zu uns zu holen, damit er sein Modell und seine Berechnungen vorstellt. Der nicht mehr in der Gemeinde lebende ehemalige Vorsitzende des Bauausschussses hatte uns in der Börnsener Rundschau dreist beleidigt , ohne die Sachlage vollständig recherchiert zu haben. Es kann daher nicht sein, dass derjenige, der halb zitiert, am Ende ganz gewinnt.
    Außerdem hatte der ehemalige Vorsitzende des Bauausschusses im selben Blatt eine Kostenschätzung für eine neu zu errichtende Zweifeldhalle aufgestellt, wobei er auf eine Summe von 2.481.000 Euro kommt. Dies Vorgehen erstaunt uns, denn es war gerade der Wunsch der Beteiligten, das Thema ‚Finanzen' zunächst bewusst auszuklammern. Im ersten Schritt soll eine Arbeitsgruppe die Sporthalle mit allen Nebenräumen planen. Erst, wenn diese Planungen und alle Wünsche und Festlegungen erörtert worden sind, lasse sich seriös über Kosten reden.
  • Wir haben in der Diskussion um die Wiederbesetzung der Arzt-Praxis unsere Sichtweise dargestellt und betont, dass es uns in keiner Weise darum ging, dem Bürgermeister Versäumnisse nachzuweisen. Vielmehr wollten wir selbst Verantwortung und Initiative aufzeigen, weil der Bürgermeister im Februar in der Gemeindevertretersitzung geäußert hatte, dass „definitiv" die Arztstelle in Börnsen nicht wieder besetzt werden würde. Dass der Bürgermeister aktiv war, war nicht zu erkennen gewesen, da er uns erst informiert hat, nachdem unser Antrag mit der Aufforderung zum Tätigwerden zur Verhandlung anstand. Eine rechtzeitige Information über seine Bemühungen hätte uns allen viel Ärger erspart.
  • Wir bedanken uns bei der Börnsener Rundschau über das Lob bezüglich der guten Organisation bei der Veranstaltung "Menschenkette" am 24. April. Die Organisation wurde von uns gemacht.

 Zum Bericht

5. Juli 2010: Solardach – Ausschreibungsverfahren läuft

Das Ausschreibungsverfahren für das Solardach auf dem Bürgerhaus ist angelaufen. Nach der Neuregelung des Erneuerbare Energien-Gesetzes sinkt die Vergütung zum 1. Juli um 13 Prozent, zum 1. September um weitere 3 Punkte. Dafür wird aber die Förderung für die Eigennutzung des Stroms angehoben. Dies gibt der Gemeinde Börnsen die Chance, trotz Absenkung der Förderung nicht nur einen Beitrag für den Einsatz umweltfreundlicher Energien zu erbringen, sondern auch einen angemessenen Ertrag zu erwirtschaften.

3. Juli 2010: Gastschulabkommen – auch Bönsener SchülerInnen betroffen

Die Elterninitiative "Schule ohne Grenzen" hat erfolgreich zur Bildung einen Menschenkette zwischen dem Bergedorfer Rathaus und dem Wentorfer Casinopark aufgerufen. Ca. 2000 Menschen, vorwiegend Eltern und Kinder, bildeten eine geschlossene Kette und gaben der Forderung Ausdruck, dass sich Hamburg und Schleswig-Holstein endlich über ein Gastschulabkommen einigen mögen.  Unterstützung seitens der Grünen gab es auch durch den Ortsverband Börnsen. Prominente Grüne Teilnehmer waren unser Bundestagsabgeordneter Dr. Konstantin von Notz und die Landtagsabgeordnete Ines Strehlau.

Am 29. Juni hatte eine Informations- und Diskussionsveranstaltung über das Gastschulabkommen im Luisengymnasium in Hamburg-Bergedorf stattgefunden. Dabei haben Eltern aus dem Kreis Herzogtum-Lauenburg und dem Raum um Reinbek ihrem Unmut über die mit dem Schulbesuch ihrer Kinder in Bergedorf verbundene Unsicherheit Luft gemacht. Wenn sich Hamburg und Schleswig Holstein nicht auf ein Abkommen einigen, müssen viele Schüler, deren Eltern von Hamburg nach Schleswig-Holstein umgesiedelt sind, in Kürze ihre Hamburger Schule verlassen. In der Regel arbeiten diese Eltern weiter in Hamburg, zahlen aber in Schleswig-Holstein Steuern.

Hintergrund:
Schulfragen sind Ländersache. Die SchülerInnen müssen daher im Land ihres Wohnortes die Schule besuchen. An den Ländergrenzen entstehen auf Grund familiärer Verhältnisse und lokaler Besonderheiten allerdings Überschneidungen. Hauptursache dafür ist im vorliegenden Fall der Wegzug der Eltern nach dem Neubau eines Eigenheimes von Hamburg nach Schleswig-Holstein. Bisher gab es eine Sonderregelung, die diesen grenzenüberschneidenden Austausch regelte. Im Fall SH/HH hat sich allerdings die Anzahl wechselnder SchülerInnen dramatisch vergrößert. Gut 6200 SchülerInnen aus Schleswig-Holstein muss Hamburg mehr beschulen. Deshalb verlangt Hamburg einen finanziellen Ausgleich. Die Kosten für Hamburg betragen ca. 31 Millionen Euro pro Jahr. Das Land hat aber signalisiert, dass es SH preislich entgegenkommen würde. Schleswig-Holstein hat sich bis jetzt geweigert, zuzustimmen. Argumente: SH hat kein Geld, SH hat selbst Schulen. Als Kostenausgleich zahlt Schleswig-Holstein dafür 8,5 Millionen Euro. Dieser Betrag deckt nicht annähernd die Kosten, die für Hamburg entstehen. Die Situation stellt sich für uns so dar, dass die Eltern in SH Steuern zahlen, SH will aber den angemessenen Betrag für HH nicht zurückerstatten.

Das Bild zeigt die Kette im Blick von der Landesgrenze HH/SH Richtung Wentorf

16. Juni 2010: Mischgebiet Bornbusch – Fehlplanung?

Andere Gemeinden planen ihre Gewerbegebiete am Ortsrand. Nicht so Börnsen. Hier wurde die Ansiedlung von Firmen in die Ortsmitte von Neu-Börnsen und damit auch dicht an den Rand der Wohngebiete gelegt. Jetzt nach dem Erwerb zweier Grundstücke am Bornbusch durch den Discounter Lidl und einen Getränkemarkt wird Protest bei den Anliegern laut. Das ist verständlich. Insbesondere auch deshalb, weil offenbar der Verkäufer der Grundstücke die Option der Ansiedlung größerer Firmen verschwiegen hat. Besonders unverständlich: Die Zufahrt zu den Gewerbebetrieben wurde über eine einspurige Wohnstraße geplant. Inzwischen wurde signalisiert, dass ein Umbau vorgenommen werden soll, so dass Teile der Straße zweispurig werden. Die dabei überbauten Stellplätze sollen auf die Gewerbefläche verlagert werden.

Das Bild zeigt den Beginn der Erdarbeiten am Bornbusch vom Kreisel aus

10. Juni 2010: Arztpraxis – Gemeindevertretung fällt keine Entscheidung

Der Vortrag eines Vertreters der Kassenärztlichen Vereinigung im Sozialausschuss vor wenigen Wochen brachte Klarheit: Die Wiederbesetzung der vakanten Arztstelle in Börnsen ist nicht so ohne weiteres möglich. Dennoch sehen wir zwei Chancen, wieder zu einer Arztniederlassung zu kommen. Die eine besteht darin, den Großversorger von der Notwendigkeit bzw. Attraktivität einer Praxis in Börnsen zu überzeugen. Die zweite wäre, den Ort im Deutschen Ärzteblatt zu bewerben. Börnsen hätte dann auf Grund der Darstellung seiner Vorzüge eine größere Chance, als passender Praxisstandort entdeckt zu werden. Zur Sitzung der Gemeindevertretung hatten wir den Antrag gestellt, den Bürgermeister aufzufordern, in dieser Richtung tätig zu werden. Doch zu einer Entscheidung kam es nicht. Der Bürgermeister teilte mit, dass er gerade dabei sei, etwas zu unternehmen. Ein Ergebnis läge aber noch nicht vor.

Was gab es sonst noch?
♦ Bürgerbeteiligung an der GWB wird nicht empfohlen
♦ Sporthallenplanung geht jetzt in kleiner Runde weiter
♦ Aufschrei gegen Finanzmisere findet nicht statt

Einzelheiten im Bericht über die Gemeindevertretersitzung

7. Juni 2010: Biologische Vielfalt – Börnsen macht mit

2010 ist das internationale Jahr der biologischen Vielfalt. Die Bundesregierung hat schon 2007 eine umfassende Strategie zur biologischen Vielfalt verabschiedet, die in den nächsten Jahren umgesetzt werden soll. Wichtige Akteure bei den Bemühungen um die biologische Vielfalt sind die Städte und Gemeinden in Deutschland.

Auf Anregung der Grünen hat auch die Gemeinde Börnsen jetzt die Deklaration „Biologische Vielfalt in Kommunen" unterzeichnet. Sie befindet sich damit in der Gesellschaft von bisher insgesamt 146 Städten und Dörfern, darunter z. B. Bonn, Heidelberg, Nürnberg und Geesthacht.

Börnsen geht damit keine Verpflichtung ein, gibt aber ein Signal für den Erhalt der Biodiversität. Börnsen kann durch sein Mitwirken Informationen erhalten und am Austausch von Aktionen und Erfahrungen teilhaben.

25. Mai 2010: Chancen für eine Arztpraxis verbessern

Nach dem Tod des Allgemeinarztes steht die Gemeinde Börnsen ohne medizinische Praxis da. Auf Grund der Vorgaben für Ärztezulassungen kann Börnsen allerdings auf absehbare Zeit nicht mit einer Neubesetzung rechnen.

Wir sehen aber noch zwei Möglichkeiten, wieder zu einer Arztniederlassung zu kommen. Die eine besteht darin, den Großversorger, der die alte Praxis erworben hatte, von der Notwendigkeit bzw. Attraktivität einer Niederlassung in Börnsen zu überzeugen. Die zweite wäre, den Ort im Deutschen Ärzteblatt zu bewerben. Börnsen hätte dann auf Grund der Darstellung seiner Vorzüge eine größere Chance, als passender Praxisstandort entdeckt zu werden. In einem Antrag zur Gemeindevertretersitzung am 10. Juni regen wir jetzt an, dass der Bürgermeister Verhandlungen mit dem Großversorger aufnimmt und die Anzeige im Ärzteblatt in Auftrag gibt.

Zur Pressemeldung

20. Mai 2010: Machbarkeitsstudie zur Sporthallenplanung vorgestellt

Auf Grund der Auswertung der in Schule, Kita und einigen Sportvereinen erhobenen Bedarfe legte der beauftragte Planer seine Vorschläge vor. Demnach wäre der Neubau einer Zwei-Feld-Sporthalle (44  x 22 m) angezeigt. Für die Standardausführung wurde der Komplettpreis grob mit 2 Millionen Euro veranschlagt. Zusätzlich wurden vier einfachere Ausführungen von Hallentypen vorgestellt: Containerbau, Stahlbau, Traglufthalle und Spannbau (Zelt), wobei die letzten beiden nicht den Eindruck eines ernsthaften Vorschlags hinterließen. Weitere verwertbare Fakten wurden nicht vorgetragen.

Inzwischen haben wir uns bei möglichen Alternativen im Sporthallenbau umgesehen. Der Hauptknackpunkt ist natürlich die Finanzierung. Dabei sind wir auf einen Architekten gestoßen, der nach eigenen Angaben durch geschickte Ausnutzung der Dachfläche für Solarernergie damit so hohe Erträge erzielt, dass sich daraus die Kosten für den Bau komplett decken lassen. Das uns vorgelegte Angebot gilt für eine Halle mit Innenmaßen von 31 x 60 m. Ob es für Börnsen passend ist, soll jetzt geprüft werden.

19. Mai 2010: Wie geht es weiter mit den Finanzen?

Die Präsidentin des Städtetages Petra Roth hat die erwarteten Schulden für die Kommunen mit 15 Milliarden Euro beziffert. Vom Anstieg der Verpflichtungen wird auch die Gemeinde Börnsen betroffen sein. Aktuell liegt unser Defizit bei 1,5 Millionen Euro.

Für der Sitzung des Finanzausschusses haben wir angeregt, mit einem Brief an den Ministerpräsidenten und die Bundeskanzlerin das Land Schleswig-Holstein und den Bund aufzufordern, die Gemeindefinanzen bis 2020 abzusichern. Im Fall einer weiteren Verschuldung drohen die Handlungsfähigkeit und die Gewährleistung der Daseinsvorsorge verloren zu gehen sowie die im Artikel 28 des Grundgesetzes verankerte Selbstverwaltungsgarantie unterhöhlt zu werden.

Die Schulden der Kommunen im Land betragen insgesamt 2,9 Milliarden Euro. Die dem Land SH bis 2020 auferlegte Schuldenbremse gilt nicht für die Kommunen. Deshalb ist zu erwarten, dass das Land und der Bund die Aufgaben ohne die bisherige Kompensation an die Kommunen weiterreichen werden. Die Schuldenbremse darf nicht dazu führen, dass das Land den Kommunen noch mehr Geld aus dem kommunalen Finanzausgleich wegnimmt. Die Kommunen brauchen einen Schutzwall, damit sie handlungsfähig bleiben.

Das Urteil zur Neuregelung der Amtsstruktur durch das Landesverfassungsgericht birgt für die schleswig-holsteinischen Kommunen die Chance, die Verwaltungsstruktur mit der Aussicht auf Kostenersparnisse neu zu regeln. Die so ersparten Gelder sollten dann aber vollständig bei den Kommunen verbleiben.

24. April 2010: Riesenerfolg für die Kette gegen Atomkraft

Wir haben es geschafft. Ein Riesenerfolg für Börnsen und Umgebung. Eine Menschenkette ohne Lücken zwischen Escheburg und Landesgrenze Hamburg. Zusätzlich gab es sogar Stellen, wo die Demonstranten zu dicht standen. Insgesamt 120.000 Menschen befanden sich auf der Strecke zwischen Brunsbüttel und Krümmel, allein in Börnsen waren es 2.000.

„KettenreAktion: Atomkraft abschalten!" war das Motto für die 120 km lange Aktions- und Menschenkette zwischen Brunsbüttel und Krümmel. Die Kette führte durch schleswig-holsteinische Kreisgebiete, quer durch Hamburg und auch durch Börnsen.

Ausführlicher Bericht

22. April 2010: KETTENreAKTION – Noch zwei Tage

Die Kraft der Plakate – an der AVIA-Station

21. April 2010: Referat zur zukünftigen medizinischen Versorgung

Auf Anregung der Fraktion Bündnis 90/Die Grünen referierte Martin Maisch von der Kassenärztlichen Vereinigung Bad Segeberg über das Thema „Die zukünftige Entwicklung der ärztlichen Versorgung" im Kultur- und Sozialausschuss der Gemeindevertretung. Als Resümee des Vortrags ergab sich, dass das Angebot an Arztpraxen im ländlichen Bereich immer mehr ausgedünnt wird, während sich die Angebote auf die Ballungsbereiche konzentrieren. Als Rahmen für die weitere Entwicklung stellte der Referent zwei Problempunkte in den Vordergrund: Die Altersstruktur des Ärztebestandes und die gesetzlichen Vorgaben für die Ärztezulassungen. Die Ärzteschaft sei überaltert, Nachwuchs nicht in Sicht. Das gelte sowohl für Hausärzte als auch für Fachärzte. Ärzte würden derzeit lieber ins Ausland gehen oder in anderen Bereichen wie der pharmazeutischen Industrie arbeiten. „Die kassenärztlichen Zulassungen sind zu grobmaschig", stellte Maisch fest. Würden mehrere Ärzte in einem Ort praktizieren, so könnten für das flache Land keine mehr zugelassen werden, weil das Soll für den Gesamtraum erfüllt sei. Eine Neuniederlassung könne nur erfolgen, wenn die Praxis von einem ausscheidenden Kollegen übernommen würde.

Am Beispiel Börnsen zeige sich die ganze Problematik dieser Regel: Der kürzlich verstorbene Allgemeinarzt hatte noch zu Lebzeiten seine Zulassung an ein medizinisches Zentrum in Geesthacht, also einen Großversorger, abgegeben. In der 4000-Bewohner-Gemeinde ist deshalb die Nachfolge für einen Hausarzt vor Ort ausgeschlossen. Zwar könnten sich Börnsener wegen der relativ kurzen Wege gut in den Nachbarorten versorgen lassen. Dennoch liege natürlich hiermit für Börnsen ein großer Nachteil vor. Weniger mobile Menschen müssten Fahrdienste bemühen, Hausbesuche seien erheblich erschwert. Der Referent forderte die Landesregierung auf, eine sektorenübergreifende Versorgungsplanung zu gewährleisten. Maisch gab den Ortspolitikern den Ratschlag, sich aktiv und rechtzeitig um eine geregelte Nachfolge bzw. um die Einrichtung einer Praxis zu bemühen. Insbesondere wären auch Verhandlungen mit dem Versorgungszentrum angeraten.

15. April 2010: Gemeindevertretersitzung – Solardach kommt

Erfolg für uns Grüne: Das Solardach auf dem Bürgerhaus wird kommen. Die Gemeindevertretung hat die auf unseren Vorarbeiten basierende Vorlage des Amtes einstimmig angenommen. In Kürze wird die Ausschreibung erfolgen.

Ein weiterer Erfolg: Die Vertretung votierte einstimmig für unsere Vorlage, dem Bündnis für Artenvielfalt beizutreten.

Der Versuch, die Biotopverbundfunktion für die Felder an der Dalbekschlucht festzuschreiben, geht in die nächste Runde. Wir hatten die endgültige Entscheidung im Form einer Klarstellung der gesetzlichen Regelung durch das Amt beantragt. Allerdings trug der Bürgermeister vor, dass noch die Antwort auf einen Brief an die Naturschutzbehörde aussteht, was den Aufschub einer Entscheidung zur Folge hatte. Der Bürgermeister erklärte, dass die jetzige Gemeindevertretung den Schutz wünsche und dies auch über die Bauleitplanung festschreiben wolle. Auf die Vorstellungen einer zukünftigen neuen  Zusammensetzung des Gemeindeparlaments könne man aber keinen Einfluss haben. Genau das halten wir für falsch: Wir sind davon überzeugt, dass ein Schutz der Felder und damit verbunden der Schutz der Landwirtschaft und der Schutz des Niederwildes längerfristig von Bedeutung sind und nicht nur für die heutige Mehrheit.

Was gab es noch?

  • Freies Licht für den Bau des Discounters und des Getränkemarktes Am Bornbusch
  • Beseitigung von Straßenschäden und Deckensanierung
  • Genehmigung der Gelder für den Schulhofumbau
  • Ausbau der Kindertagespflege
  • Verpflichtung der Gemeinde zur Umsetzung Beteiligung von Anliegern an den Straßenkosten bei Gemeindestraßen

Zum Bericht über die Gemeindevertretersitzung

31. März 2010: Anträge zur Gemeindevertretersitzung

Zur Gemeindevertretersitzung am 15. April (siehe auch Spalte rechts) haben wir drei Anträge eingereicht. Themen: Beitritt zum Bündnis für biologische Vielfalt, Biotopverbund zwischen Dalbekschlucht und Börnsener Feldmark, Bericht über Geschäftsvorfälle in der GWB im Finanzausschuss.

Zum Wortlaut der Anträge

29. März 2010: Ausschuss empfiehlt Bau einer Solarstromanlage

Nach der Prüfung der von uns eingereichten Unterlagen ist der Kämmerer des Amtes Hohe Elbgeest zu einem positiven Ergebnis gekommen: Er empfiehlt der Gemeindevertretung, dem Bau einer Photovoltaikanlage auf dem Dach von Bürgerhaus und Turnhalle zuzustimmen.

Weitere Einzelheiten und der Bericht aus der Bauausschusssitzung folgen

12. März 2010: Wentorf baut auf Börnsener Gebiet – ohne Rücksprache

Die Regenrückhaltebecken des Wentorfer Gewerbegebietes nördlich des Pusutredders liegen direkt an der Grenze zu Börnsen. Für die Becken steht eine Entschlammung an. Es gab bisher eine feste Zufahrt. Jetzt hat die Gemeinde Wentorf vier weitere behelfsmäßige Überfahrten über die Schulenbrooksbek gebaut und dabei Börsener Gebiet mit einbezogen. Es gab keine Information der Börnsener Selbstverwaltung. Auch der Bürgermeister sagt, dass er nicht informiert wurde. Die Becken sind im Laufe der letzten Jahrzehnte von Amphibien als Biotop erobert worden. Dass gerade kurz vor der Wanderung der Tiere zu ihren Laichplätzen dieser Eingriff an einer besonders sensiblen intakten Bachstelle vorgenommen wurde, ist eine absolute Unverständlichkeit. An dieser Hauptquerungsstelle für die Amphibien hatte sich durch Wurzelbildung eine Schutz- und Aufenthaltsmöglichkeit herausgebildet, die jetzt zerstört ist. Die Gemeinde Börnsen betreibt in Zusammenarbeit mit dem BUND erfolgreich den gesetzlich vorgeschriebenen Amphibienschutz.

Das Foto zeigt die provisorisch angebrachte und zwischenzeitlich schon abgesackte Überfahrt direkt an der Ecke Pusutredder/Fleederkamp. Es scheint ein Rätsel, wie diese demnächst beim Überqueren durch schwere Fahrzeuge standhalten soll.

8. März 2010: Landpächter fällt gemeindeeigene Bäume

Wie jetzt in der Sitzung des Umweltausschusses bekannt wurde, hat vor ca. zwei Wochen der Pächter der landwirtschaftlichen Fläche nördlich des Frachtweges eine Reihe großer alter Eichen am Wegrand auf Gemeindegebiet gefällt. Angeblich wusste er nicht, dass es sich um eine Gemeindefläche handelte. Das Holz wurde von der Gemeinde nicht zurückgefordert. Bürgermeister und Amt verzichten auf eine Anzeige.

Zum Bericht über die Umweltausschusssitzung

1. März 2010: Folgen der demographischen Entwicklung für Börnsen

Zur Sitzung des Planungausschusses hatte der Vorsitzende auf unsere Anregung den Kreisplaner zu einem Vortrag eingeladen. Das Thema war "Die demographische Entwicklung des Kreises Herzogtum Lauenburg mit besonderem Schwerpunkt auf Börnsen und den Nachbargemeinden". Dabei zeigte der Planer auf, dass der Bevölkerungszuwachs im Kreis seit der Jahrhundertwende stetig rückläufig ist. Ab 2008 nimmt die Zahl der Einwohner sogar ab, was den bisherigen Prognosen zuwiderläuft. Zudem steigt der Anteil älterer Menschen unaufhörlich an. Während die Bevölkerung am Hamburg-Rand in Wentorf, Börnsen und Escheburg durch die Neubaugebiete noch nicht unter einem Schwund leidet, so ist immerhin auch hier der Zuwachs an älteren Menschen ebenso signifikant.

Was ergibt sich daraus? Der wachsende Anteil Älterer erfordert eine Zunahme an medizinischer und pflegerischer Versorgung. Dies hatten wir schon vor knapp zwei Jahren erkannt. In unserem Wahlprogramm sowie in den Ausschüssen der Gemeindevertretung hatten wir den Bau einer Einrichtung für Senioren in der Dorfmitte zur Diskussion gestellt. Damals gab es allerdings noch heftigen Widerspruch von der SPD, die uns "haltlose Wünsche" vorwarf und argumentierte, mit den alters- und behindertengerechten Wohneinheiten der AWO am Rudolf-Donath-Weg genügend für ältere und gebrechliche Menschen getan zu haben. Welche Überraschung jetzt in der Ausschussitzung:

SPD kopiert Vorschlag der Grünen

Jetzt hat die SPD unsere Initiative aufgegriffen, und den Antrag gestellt, Möglichkeiten zur Schaffung einer Einrichtung für Wohnen und Pflege zu klären. Wir begrüßen das Umschwenken der SPD. Hat es dazu erst dieses Vortrags mit den Fakten über die demographische Entwicklung bzw. deren Ankündigung bedurft?

22. Februar 2010: Bauausschuss genehmigt Neubau von Geschäftshäusern

Der Bau neuer Geschäftshäuser in Börnsen wird Wirklichkeit. Der Bauausschuss stimmte dem Bau eines Discountermarktes und einem Getränkemarkt in Neu-Börnsen genauso zu wie einem Ersatz des Maschuw-Ladens an der Lauenburger Landstraße.  

Im Bauausschuss haben wir nachgefragt: Was machen die Fortschritte zur Errichtung einer Solaranlage auf dem Bürgerhaus? In der letzten Sitzung war dem Kämmerer aufgetragen worden, Finanzierbarkeit und Machbarkeit zu Prüfen. Die Antwort: Nichts – der Kämmerer hat derzeit andere Aufgaben. Wie jetzt bekannt wurde: Die Vergütung für Solaranlagen durch das Erneuerbare Energien Gesetz wird zum 1. Juli definitiv um 16 Prozent abgesenkt.

16. Februar 2010: Kommunalaufsicht bestätigt Bedenken

Auf der letzten Gemeindevertretersitzung (siehe auch Meldung vom 11. Februar)  hat der Bürgermeister die Abstimmung über eine umfangreiche Vorlage (17 Seiten) durchgesetzt, obwohl diese erst zu Sitzungsbeginn vorlag. Wir sehen uns außerstande, eine wichtige Entscheidung über einen Gegenstand zu treffen, zu dem wir uns vorher nicht schlau machen konnten. Wir haben bei der Kommunalaufsicht nachgefragt, ob das Vorgehen des Bürgermeisters richtig war, die Unterlagen erst mit der Abstimmung einzureichen. Die Antwort: Dies kann rechtlich nicht angefochten werden. Das Vorgehen ist aber unüblich. Andere Gemeinden würden ein solches Verfahren nicht handhaben. Der Wunsch auf Gewährung einer hinreichenden Zeitspanne zum Befassen mit einer umfangreichen Vorlage werde in der Regel den politischen Gremien überall gewährt. Unser Kommentar: Nur in Börnsen nicht.

11. Februar 2010: Gemeindevertretung kippt B-Plan

Mit einem aus unserer Sicht unkorrekten Vorgehen hat die Gemeindevertretung in ihrer Sitzung den Beschluss zum B-Plan Ortsmitte gekippt. Die 17-seitige Vorlage wurde erst zum Sitzungsbeginn präsentiert. Unser Antrag auf Absetzung und Vertagung wurde mehrheitlich abgelehnt. Wir lassen jetzt von der Kommunalaufsicht prüfen, ob dieses Vorgehen rechtens ist.

Hintergrund: Bisher konnten sich die Hauptbeteiligten an der Umsetzung des B-Planes nicht auf ein einheitliches Vorgehen einigen. Die Aufhebung des Beschlusses vom Mai 2008 macht den Weg für neue Pläne frei. Nach unserer Einschätzung soll jetzt der aktuellen Kostensituation für Bauplatzpreise Rechnung getragen werden. Wir erwarten die Freigabe einer noch engeren Bebauung.

Zum Bericht über die Gemeindevertretersitzung
Zum Bericht über die Sitzung des Finanzausschusses am 10. Februar

Zum Foto: Werbung für das Neubaugebiet – jetzt hinfällig

25. Januar 2010: Solaranlage – weiteres Zögern mindert Erträge

In der Sitzung des Bauausschusses haben wir das Thema „Bau einer Solaranlage auf dem Bürgerhaus mit Turnhalle" erneut auf die Tagesordnung gebracht und weiterverhandelt. Wir haben in der Zwischenzeit Angebote von Installationsfirmen eingeholt und einen Kostenvergleich im Ausschuss vorgelegt. Wir haben Gespräche mit Gemeinden geführt, die kürzlich Anlagen gebaut haben, insbesondere mit unseren Nachbargemeinden Hohenhorn und Escheburg. Dort besteht eine große Zufriedenheit über den Ablauf der Installation und die erzielten Erträge. Nach allgemeinem Kenntnisstand ist aktuell eine Gesamtkapitalrendite um die 10 Prozent erzielbar (plus/minus 3 Prozent). Das Angebot der Firma BalticSolar prognostiziert eine Rendite von 8,7 Prozent.

Allerdings wird sich das in absehbarer Zukunft nicht so fortsetzen. Die von der Bundesregierung angekündigte Absenkung der Einspeisevergütung wird mit Sicherheit die Rendite um einige Prozentpunkte mindern. Da aber mit einer weiteren Kostensenkung bei den Solarmodulen gerechnet wird, könnte sich die Verminderung des Ertrags abmildern. Zwar muss die Entwicklung abgewartet werden. Dennoch bleibt für den Bauausschuss der Einwand bestehen, dass der Vorschlag zum Bau der Solaranlage seit nunmehr 9 Monaten von uns mit immer neuen Fakten unterfüttert wird, es aber immer wieder Einwände gibt, um eine Entscheidung hinauszuzögern. Die Anlage hätte längst stehen und die bis heute äußerst günstige Einspeisevergütung erzielen können.

Ergebnis der Sitzung: Der Ausschuss hat schließlich nach hartnäckigem Verhandeln dem Antrag zugestimmt, dass der Kämmerer des Amtes den Auftrag erhält, Machbarkeit und Finanzierbarkeit einer Photovoltaikanlage, insbesondere auch anhand des von uns vorgelegten Materials zu prüfen.

25. Januar 2010: Neuer Plan für die Einleitung am Feldkamp

Die bestehende Ableitung des Oberflächenwassers von einem Teil der alten Dänenheim-Siedlung hat tiefe Erosionen in den Dalbekwald gerissen. Das abgeschwemmte Material wird in einer Größenordnung von 5000 Kubikmeter angegeben (jährlich 200). Die Einleitung verändert damit nicht nur die Waldschlucht mit all ihren negativen Folgen, sie verstopft auch die Abläufe in den Elbmarschen. Auf Grund dieser Eigenschaften trägt sie in der Wasserbehörde zu Recht auch die Bezeichnung "Katastropheneinleitung". Im Rahmen der Kooperation mit dem Land Hamburg zur Abmilderung der Sandeinträge von der Geest in die Marsch hat jetzt die Wasserbehörde Ratzeburg einen Vorschlag zur Umwidmung ausgearbeitet. Das Wasser soll über eine Rohrleitung unter dem Wanderweg in die Talsohle gelenkt werden. Dort wird eine seichte Auffangfläche geschaffen, aus der das Wasser auf gleicher Höhe in den Bach einschwenken kann. Die Kosten werden sich auf ca. 14.000 Euro belaufen. Davon hat Börnsen im Rahmen der beteiligten Solidargemeinschaft der betroffenen einen kleinen Teil zu tragen. Der überwiegende Anteil wird vom Hamburg-Rand-Fond zur Verfügung gestellt.

16. Januar 2010: Konzessionsverträge – vier Bieter im Nordkreis

Im Nordkreis sind die Konzessionsverträge für die Stromnetze in 36 Gemeinden neu vergeben worden. Alle Gemeinden haben sich für die Stadtwerke Bad Oldesloe/ Ratzeburg/Mölln entschieden. Was hat das mit Börnsen zu tun?

Im Sommer hat Börnsen ebenfalls einen neuen Konzessionsvertrag abgeschlossen – mit dem Konzern E.on Hanse AG. In Börnsen gab es nur diesen einen Bieter, im Nordkreis aber vier (siehe Presseausschnitt, LN 16.01.2010). Dieser Unterschied macht uns nachdenklich.

14. Januar 2010: Vorgespräch Machbarkeitsstudie Multifunktionshalle

Die Nachfrage zur Nutzung von Sprothallenkapazität in Börnsen ist inzwischen so groß, dass die bestehende Halle dafür nicht mehr ausreicht. Aus diesem Grund gibt es sowohl bei der Gemeinde als auch bei den Vereinen erste Überlegungen zum eventuellen Bau einer neuen, größeren Halle, einer sog. Multifunktionshalle. Bei einem ersten Informationsabend stellte Prof. Robin Kähler aus Kiel Betrachtungen zur Umsetzung in einer Machbarkeitsstudie vor. Nach zwei weiteren Sitzungen ist für Ende Juni die Abgabe des Endberichts geplant.

12. Januar 2010: Biotopverbund – erneuter Aufschub einer Entscheidung

Die Versorgungsleitungen für die neue landwirtschaftliche Halle und die Wohnung an der Börnsener Straße sind verlegt. Die Anlage liegt außerhalb des Bebauungsplanes im Außenbereich. Die Genehmigung zum Bau wurde gerichtlich erstritten. Doch jetzt drängt sich die Befürchtung auf, dass das Vorhandensein der Versorgung langfristig zum Bau weiterer Einrichtungen entlang der Börnsener Straße einlädt. Um dies zukunftssicher zu verhindern, insbesondere zum Erhalt des Biotopverbunds zwischen Dalbekwald und den umliegenden Feldern, haben wir im Umweltausschuss angeregt, die noch nicht bebauten Felder an der Straße unter Landschaftsschutz zu stellen. Das würde die Unmöglichkeit einer weiteren Erschließung auch über die jetzige Zusammensetzung der Gemeindevertretung hinaus absichern.

Die Ausschussmehrheit wollte sich bisher diesem Vorschlag nicht anschließen, auch in der heutigen Sitzung nicht. Der Bürgermeister argumentierte, dass eine Änderung des Flächennutzungsplanes für diesen Bereich ohnehin nicht genehmigungsfähig sei, was nach seiner Meinung eine bauliche Veränderung mit Sicherheit verhindern würde. Er meinte, dass in der Regionalplanung durch das Land eine Bebauung nicht vorgesehen sei. Wir haben uns den Regionalplan angesehen. Darin sind solche Beschränkungen nicht zu erkennen. Wir sind weiterhin der Ansicht, dass ein besonderer Schutz für diesen Bereich unerlässlich ist (siehe auch unsere Meldung vom 19. Januar 2009 unter Alte Meldungen).

Im Ausschnitt des Regionalplanes deutlich zu erkennen: Keine Auflagen für die Felder an der Börnsener Straße (unterhalb der Zahl "55"):

30. Dezember 2009: GRÜNE wehren sich gegen den Vorwurf der Polemik und Respektlosigkeit (durch den Bürgermeister)

In der neuesten Ausgabe der SPD-Zeitung ‚Börnsener Rundschau' schreibt Bürgermeister Walter Heisch, dass die Fragestellung auf unserer Internetseite zum Abschluss eines Konzessionsvertrages der Gemeinde mit dem Konzern E.on Hanse AG polemisch und respektlos gewesen sei. Wir hatten gefragt, warum es keine weiteren Bieter gegeben habe. Dazu nehmen wir wie folgt Stellung:

Wir weisen den Vorwurf der Polemik und Respektlosigkeit entschieden zurück. Im Gegenteil, wir haben uns in der Gemeindevertretung und den Ausschüssen seit unserer Zugehörigkeit immer um eine konstruktive Mitarbeit bemüht. Auch im vorliegenden Fall haben wir schon frühzeitig vorgeschlagen, Verhandlungen mit heimischen Energieversorgern zu führen.

Herr Heisch moniert in unserem Text das Wort ‚angeblich' (Angeblich gab es keine weiteren Bieter). Dieser Ausdruck zwingt sich auf, weil wir nicht darüber informiert worden sind, ob sich unser Bürgermeister oder der Kämmerer des Amtes durch Vorgespräche um weitere Betreiber bemüht haben. Wir können nicht verstehen, dass ausgerechnet in Börnsen die regionalen Stadtwerke um die Konzession nicht mitbieten, während das überall sonst in Schleswig-Holstein gerade diskutiert oder praktiziert wird. Uns fehlt die Transparenz, die wir seit unserer Mitgliedschaft im Gemeinderat einfordern. Unsere Fragen (Hat Börnsen sich aktiv um weitere Anbieter bemüht? Wenn nein, warum nicht?) wurden bisher nicht beantwortet. Wenn der Bürgermeister sich darauf beschränkt, ‚öffentlich ausgeschrieben' zu haben, so ist das für uns zu wenig. Dies ist passiv und sichert nicht, dass auch kleinere Versorger diese Ausschreibung finden. Nach unserer Ansicht muss es im Interesse einer Gemeinde liegen, möglichst regionalen Betrieben den Zuschlag zu geben, weil dadurch auch die Rendite in der Region verbleibt und nicht durch internationale Shareholder abgeschöpft wird.

Doch worum geht es wirklich?

Börnsen war bis zum Sommer 2009 die einzige Gemeinde in Schleswig-Holstein, die zwei Stromnetze nebeneinander betrieben hat. Es gab einen Konzessionsvertrag mit der GWB, später GWB-Netz, und einen anderen mit E.on. Beim Verkauf des Netzes der GWB an E.on in diesem Sommer wurde auch die Konzession an E.on übertragen. Dieser Vertrag läuft bis 2021 (er wurde 2001 abgeschlossen und gilt in der Regel über 20 Jahre). Für das alte E.on-Netz (früher SchleswAG) war der Konzessionsvertrag regulär zum 31.12.2009 ausgelaufen. Hier wirft sich die Frage auf, ob es Sinn macht, die Trennung beider Netze beizubehalten, wenn doch jetzt schon das eine Netz der E.on gehört und das andere bisher auch von E.on betrieben wurde. Aus einer möglichen Antwort auf diese Frage ergibt sich wohl auch der Grund, warum Börnsen sich nicht aktiv um heimische Bieter bemüht. Wenn das aber so wäre, dann müsste es auch gesagt werden.

Wenn der Bürgermeister um ein einzelnes Wort in unserer Internetdarstellung eine Debatte lostritt, die in der Abqualifizierung ‚respektlos' gipfelt, dann muss er sich den Vorwurf gefallen lassen, die Umstände und Fakten zum Netzbetrieb nicht vollständig auf den Tisch gelegt zu haben. Für Börnsen ist der Tatbestand, dass weiterhin ein Konzern und nicht die heimische Energiewirtschaft den Netzbetrieb beherrscht, aus unserer Sicht äußerst unbefriedigend.

Wir sind angetreten und gewählt worden, um Dinge zu hinterfragen, Anregungen zu geben und um Projekte auf den Weg zu bringen. Wir tun dies sachlich, gründlich und nachhaltig.

16. Dezember 2009: Gemeindevertretung stimmt für Stilllegung von Krümmel

Auf ihrer letzten Sitzung im Jahr verabschiedete die Gemeindevertretung Börnsen auf Antrag der Grünen mehrheitlich mit Stimmen von SPD, Grünen und einer fraktionslosen Gemeindevertreterin bei Enthaltung von CDU und Wählergemeinschaft eine Resolution, Vattenfall aufzufordern, die Wiederaufnahme des Betriebs des Atomkraftwerkes Krümmel nicht weiterzuverfolgen und den Reaktor endgültig stillzulegen.

Der Bürgermeister wird dem Betreiber und der Landesregierung diesen Beschluss in einer Resolution schriftlich mitteilen.

Zum Wortlaut der Resolution

Zum Bericht über die Gemeindevertretersitzung

15. Dezember 2009: Grüne fordern mehr Schutz an der A25

Lärmschutz nur auf Hamburger Gebiet

Nach jahrelangen Absprachen und zähen Verhandlungen hat der Bund nun auch an der Marschenautobahn in Bergedorf Lärmschutzmaßnahmen genehmigt und die Finanzierung zugesagt. An der A 25 sollen unter anderem neue Lärmschutzwände gebaut werden. Doch was wird auf dem Gebiet von Schleswig-Holstein getan?

Hier wird bei der im Herbst 2009 neu verlegten Deckschicht auf den sogenannten Flüsterasphalt verzichtet und lediglich ein Splittmastixasphalt als neue Deckschicht verbaut, der als weniger Lärm mindernd gilt. Die Minderung des Lärmpegels wird allerdings dadurch wieder aufgehoben, dass nunmehr durchgängig 120 km/h auf der A 25 gefahren werden darf. Das bedeutet: Für uns Börnsener bleibt es so laut wie vorher.

 Weitere Informationen

11. Dezember 2009: Matschweg Neu-Börnsen – Lösung in Sicht

Die Pläne zur Instandsetzung der Verlängerung des Mühlenweges Richtung Wohltorf/Aumühle nehmen konkrete Formen an. Bei einem Besuch im Amt bekräftigten die Vertreter der Kreisverwaltung, den Weg zu sanieren und im Anschluss in das Eigentum der Gemeinden Börnsen und Wohltorf zu überführen. Den Gemeinden würden damit keine Kosten entstehen.

Die Bürgermeister aus Wohltorf und Börnsen signalisierten ihre Bereitschaft, den Weg zu übernehmen unter der Bedingung, dass in den nächsten Jahren keine Folgekosten entstehen dürfen. Diese könnten bedingt sein durch unerlaubtes Reiten oder die Benutzung von Mofas/Motorrädern. Die Gesprächsteilnehmer waren sich einig, dass die Instandsetzung dazu unter einer entsprechenden Qualität erfolgen muss. Das Amt will Anfang des nächsten Jahres ein Ingenieurbüro auswählen und danach die Ausschreibung für die Instandsetzung auf den Weg bringen.

Siehe auch unsere  Pressemeldung

2. Dezember 2009: Haushaltsplan 2010 vorgelegt

Die Haushaltsberatungen im Finanzausschuss standen im Zeichen der Wirtschaftskrise und den damit verbundenen Einbrüchen bei den Gewerbe- und Einkommenssteuereinnahmen. Als Folge übersteigen die Kosten für die pflichtigen Ausgaben im Haushaltsansatz 2010 einmal wieder die Einnahmen. Die Mitglieder des Ausschusses waren sich darüber einig, dass Kürzungen bei den freiwilligen Aufgaben kaum möglich sind und die negative Gesamtbilanz nur relativ gering aufbessern, dafür aber das "Leben in der Gemeinde zum Erliegen bringen würden". Das Bild der Haushaltssituation stellt sich zahlenmäßig folgendermaßen dar (TEuro = Tausend Euro):
2007: Defizit von ca. 810 TEuro
2008: Defizit von ca. 170 TEuro
2009: Defizit von ca. 410 TEuro im Haushaltsansatz
2010: Defizit von ca. 500 TEuro im Haushaltsansatz

2. Dezember 2009: Antrag zum Stopp des Weiterbetriebs in Krümmel

Wir haben zur nächsten Sitzung der Gemeindevertretung einen Antrag eingereicht, mit dem Inhalt, die Gemeindevertretung Börnsen möge den Konzern Vattenfall Europe AG auffordern, die Wiederaufnahme des Betriebs des Atomkraftwerks Krümmel nicht weiterzuverfolgen und den Reaktor endgültig stillzulegen.

Begründung: Der Konzern Vattenfall Europe AG hat angekündigt, den Betrieb des Kernkraftwerks Krümmel im nächsten Jahr wieder aufzunehmen. Mit einer Serie von Unfällen, Störungen und Schnellabschaltungen hatte der Betreiber des Kernkraftwerks Krümmel in den vergangenen Jahren offenbart, dass das Kernkraftwerk nicht mehr den grundlegenden Sicherheitserfordernissen entspricht. Der Konzern Vattenfall hat mit der leichtfertigen Wiederaufnahme und dem schon nach wenigen Tagen erfolgten Zusammenbruch des Betriebs im Atomkraftwerk Krümmel im Juli 2009 gezeigt, dass er nicht willens oder in der Lage ist, die notwendige Sorgfalt und die dazugehörige Seriosität bei einer so gefährlichen Technik an den Tag zu legen. Wegen der Unsicherheit beim Betrieb des Kernkraftwerks ist die Mehrheit der Bevölkerung in Sorge um ihre Gesundheit. All dies hat zu Ängsten und zu einem Vertrauensverlust in den störanfälligen Reaktor geführt. Hinzu kommen die Gefährdung durch den fehlenden Schutz bei möglichen Terrorangriffen und die Tatsache, dass der Strom aus dem Atomkraftwerk Krümmel offensichtlich nicht mehr benötigt wird.

30. November 2009: Solardach könnte kommen, aber...

Unsere Vorbereitungen zur Errichtung einer Sonnenstrom-Anlage auf dem Dach der Turnhalle mit Bürgerhaus sind eigentlich alle erfolgreich abgeschlossen. Doch bei der letzten Sitzung des Bauausschusses haben sich zwei Ausschussmitglieder mit Zweifeln gemeldet, ob die Anlage wirtschaftlich betrieben werden kann. Ihre Einwände: Wenn ein Schaden entstünde oder wenn ein Bauteil ausfällt und aufgrund von Kompatiblitätschwierigkeiten nicht ersetzt werden könnte, wäre die Anlage eher zum Schaden als zum Nutzen. Wir widersprechen dem, denn solche möglichen Schadensfälle müssen ohnehin versichert werden. Wenn Solarstromanlagen, wie behauptet, nicht wirtschaftlich arbeiten würden, dann wären ja alle der inzwischen weltweit zu Tausenden installierten Anlagen ein Zusatzgeschäft, was aber offenbar nicht der Fall ist. Wir werden jetzt erneut tätig werden und uns von Firmen eine Stellungnahme dazu einholen.

Wir haben im Bauausschuss gefragt, ob es einen Straßeninstandsetzungsplan gibt. Antwort: Den gibt es nicht, weil Börnsen kein Geld hat. Offenbar wird also in der nächsten Zeit auch keine Straße ausgebessert werden.

Zum Bericht über die  Bauausschutzsitzung

8. Oktober 2009: Neuigkeiten zum Matschweg

Die Instandsetzung des Waldweges von Neu-Börnsen nach Wohltorf/Aumühle steht weiter ganz vorn auf unserer Agenda. Erneut haben wir unser Anliegen an den Besitzer, den Kreis, herangetragen. Inzwischen liegen über 700 Unterschriften vor, die wir dem Landrat übergeben haben. In der Antwort des Landrates wird unser Anliegen anerkannt. Weiterhin sagt uns der Verwaltungsleiter, dass mit dem Amt ein Gespräch mit dem Ziel geführt sei, den Gemeinden den Weg kostenfrei zu übertragen. Eine finanzielle Hilfe wurde zugesagt. Das Amt prüft laut mündlicher Auskunft die Kostenfrage. Das kann also gut aussehen. Die Verhandlungen gehen weiter...

24. September 2009: Gemeindevertretung belässt Konzession beim Konzern

Die Gemeindevertretung hat in nichtöffentlicher Sitzung beschlossen, einen neuen Konzessionsvertrag Strom mit dem Konzern E.ON Hanse AG abzuschließen. Nachdem in der letzten Gemeindevertretersitzung beschlossen wurde, auch das GWB-eigene Netz an E.ON zu verkaufen, betreibt jetzt ein großer Konzern allein unser Netz (siehe auch den Kommentar vom 30. Juli weiter unten).

Was bedeutet der Abschluss eines Konzessionsvertrages mit einem Konzern aus GRÜNER Sicht?

Das Leitungsnetz für Strom wird in der Regel auf öffentlichem Grund verlegt. Der Betreiber des Netzes muss zur Nutzung der öffentlichen Flächen mit der Gemeinde einen Vertrag abschließen. Dieser Konzessionsvertrag räumt die für den Betrieb erforderlichen Wegenutzungsrechte ein. Im Gegenzug verpflichtet sich der Betreiber, die Versorgung der Gemeinde mit Strom zu gewährleisten. Betreiber können sowohl lokale Stadtwerke als auch außerörtliche Konzerne sein. Die Betreiber erhalten für die Pflege des Netzes ein Nutzungsentgelt durch die Strombezieher. Dabei achtet die Bundesnetzagentur darauf, dass die Gebühren angemessen und nicht überhöht sind.
Im Interesse der Kommunen und seiner Bürger sollte es liegen, dass die in der Kommune erwirtschafteten Erträge in der Region bleiben. Auch sollte gewährleistet sein, dass die Vielzahl kleiner dezentraler Stromerzeugungseinheiten gut vernetzt sind. Konzerne haben daran kein Interesse. Sie achten vorwiegend darauf, dass ihr aus zentralen Großkraftwerken erzeugter Strom über ihre regionalen Unternehmen vertrieben wird. Beim Betrieb der Netze durch einen Konzern gehen die Erträge für die Netzgebühr also für die Kommune verloren. Statt der Förderung dezentral erzeugten Stroms aus erneuerbaren Energie oder Gaskleinkraftwerken wird wieder die umweltschädliche Großkraftlösung gestützt.

Zusätzliche Frage: Warum hat Börnsen die Konzession nicht an heimische Stadtwerke vergeben?

6. September 2009: Krümmel – Aus bleibt aus! Hand drauf!

Wir bekennen uns zu regenerativen Energien, Atomkraft wird nicht mehr benötigt. Über dreißig Jahre wird Atommüll erzeugt – und es gibt kein Lager dafür. Allein deshalb darf kein weiterer Müll produziert werden. Wir haben erneut vor dem AKW Krümmel gegen den Weiterbetrieb demonstriert.

Unser Kandidat zur Landtagswahl, Klaus Tormählen, war dabei –
Rechts im Gespräch mit der Bundesvorsitzenden Claudia Roth und Konstantin von Notz, Direktkandidat zur Bundestagswahl

31. August 2009: Mandatsfrage geklärt

In der Sitzung des Bauausschusses stellten wir die Frage nach dem Mandat des Bürgermeisters (siehe 24. August direkt unterhalb dieses Eintrags). Die Antwort: Es gibt einen Beschluss der Gemeindevertretung von vor etwa vier Jahren, im Gewerbegebiet Einzelhandel für ein vollständiges Sortiment anzusiedeln. Dies geschah, als wir noch nicht in der Gemeinde vertreten waren.

In der Sitzung haben wir auch ein Angebot der Sparkasse zur Finanzierung einer Photovoltaikanlage auf Schule und Bürgerhaus vorgelegt. Wir sind so übereingekommen, dass vor einem Beschluss zum Bau die Verfahrensfrage mit den Kosten im Vorfeld geklärt werden soll.

Zum Protokoll der Sitzung des Bauausschusses

24. August 2009: Weiterer Einzelhandel nach Börnsen?

Woher hat unser Bürgermeister das Mandat?

Seit Monaten wird über die Errichtung eines EDEKA-Marktes neben ALDI an der Straße Zwischen den Kreiseln geredet. Mehrfach haben Landes- und Kreisplanung uns versichert, dass auf Grund der planerischen Vorgaben ein zweiter Einzelhandelsmarkt von mehr als 800 m2 Verkaufsfläche nicht nach Börnsen kommt. Dennoch versucht unser Bürgermeister immer wieder, seine Wünsche nach der Errichtung des zweiten Marktes umzusetzen. So konnte er bei der Landesplanung ein Umschwenken erreichen: Ein weiterer Markt würde zugelassen werden, wenn die Gemeinde Wentorf zustimmt. Also trug unser Bürgermeister den Wunsch entsprechend an die Gemeinde Wentorf heran. Für die würde ein EDEKA-Markt in Börnsen allerdings bedeuten, dass einer der zwei EDEKAs in Wentorf aufgeben müsste. Aus unserer Sicht wäre damit in Folge ein Veröden des Casinoparks wahrscheinlich. So etwas kann ein verantwortungsvoller Politiker in Wentorf niemals zulassen. Also blitzte unser Bürgermeister in Wentorf ab.

Für uns bleiben Fragen: Unser Bürgermeister sagte in Wentorf, dass Börnsen neben ALDI ein Vollsortiment wünsche. Woher hat er das Mandat, dies dort so vorzutragen? Unseres Wissens gibt es keinen entsprechenden Gemeinderats- oder Ausschussbeschluss.

Wie denkt die Mehrheit der Börnsener darüber? Ist es gut für uns, wenn wir ein so großes Angebot vor der Hautür haben? Was passiert mit den anderen Einzelhandelsgeschäften, z. B. in Börnsen unten? Wie geht Börnsen mit dem damit verbundenen Verkehrsanstieg um?

8. August 2009: Schon 180 Unterschriften für den Waldweg

Der Waldweg von Neu-Börnsen nach Aumühle war einmal ein fester und viel benutzter Wanderweg. Seit über 30 Jahren ist der Weg durch Forstfahrzeuge und die Verlegung einer Gasleitung in einem desolaten Zustand. Die Benutzung für Wanderer und Radfahrer ist seitdem so gut wie unmöglich. Seit über einem Jahr bemühen sich nun die Börnsener Grünen um eine Instandsetzung. Bisher vergeblich. Der Weg ist im Besitz des Kreises. Der verweigert die Pflege und möchte ihn am liebsten abgeben. Doch niemand will ihn haben. Weder Gemeinden noch der Forstbezirk des Fürsten Bismarck. Grüne aus Börnsen und Wohltorf wollen das so nicht hinnehmen. Seit drei Wochen sammeln sie Unterschriften von Bürgern in Börnsen und der näheren Umgebung. Ca. 180 Unterschriften sind schon zusammengekommen. Die Fortführung der Sammlung ist bis Ende September geplant. Dann soll sie dem Landrat übergeben werden und der Forderung nach Instandsetzung Nachdruck verleihen.

30. Juli 2009: Stromnetz wird an E.on-Hanse AG verkauft

Beschluss bei der Gemeindevertretersitzung: Der Verkauf des Stromnetzes des Gas- und Wärmedienstes (GWB) an die E.on-Hanse AG wurde mehrheitlich zustimmend zur Kenntnis genommen. Für uns Grüne ist der Verkauf der GAU. Börnsen vergibt damit Einfluss und Steuerungsmöglichkeiten in die Hand eines milliardenschweren Konzerns. Zusätzliche Einnahmemöglichkeiten durch die Nutzungsentgelte für die Gemeinde sind für Jahrzehnte vertan. Für uns war und ist Dezentralisierung das Ziel von Energieerzeugung und Energieversorgung.

Börnsens gepflegtes Image des kleinen Energieversorgers David als Besieger des Großkonzerns Goliath ist je geplatzt. Einzelheiten über die Hintergründe können hier aus Gründen der Vertraulichkeit zur Zeit nicht aufgeführt werden. Wir Grünen haben Vorschläge zur Umsteuerung gemacht, hatten aber keine Chance einzugreifen, zumal wir zu der Zeit, als die Weichen in der GWB gestellt wurden, noch gar nicht in der Gemeindevertretung waren.

Zum Bericht über die Gemeindevertretersitzung

27. Juli 2009: Errichtung eines zweiten Discounters rückt näher

Der Bauausschuss hat dem Vorbescheidsantrag zur Errichtung eines Einzelhandelsgeschäfts und eines Getränkemarktes in Neu-Börnsen in der Straße Am Bornbusch zugestimmt. Ob und wann mit dem Bau begonnen wird, ist aber noch nicht sicher. Damit steigt die Wahrscheinlichkeit, dass Börnsen neben ALDI einen weiteren Discounter bekommt.

13. Juli 2009: Was blüht denn da?

Wo bisher nun Einheitsgrün stand, sprießen jetzt Blumen. Doch wie kommen sie dorthin und warum wird nicht gemäht, wie bisher? Grüne setzen sich für blühende Wegränder ein. Im Umweltausschuss haben sie ein Konzept vorgelegt, dass zunächst an einigen Stellen Blumen und Wildkräuter auch einmal zur Blüte kommen, bevor sie gleich wieder abgemäht werden. Zum Start haben wir zusammen mit dem BUND eine Aussaat und eine Bepflanzung vorgenommen. Das Bild entstand an der östlichen Bushaltestelle an der B207.

6. Juli 2009: Aufklärung über Folgekosten von Neubaugebieten

"Innenverdichtung statt Bauen auf dem Acker" – so lautet das Resümee von Untersuchungen, die seit längerem im Bereich der Metropolregion Hamburg über die Zukunfts-Perspektive von Neubaugebieten angestellt werden. Bei einem Vortrag in der Sitzung des Planungsausschusses stellte die Vortragende Kathrin Fahrenkrug vom Institut "Raum und Energie" Ergebnisse von Berechnungen vor, die sich mit den zukünftigen Kosten und der Bevölkerungs-Entwicklung in Städten und Gemeinden befassen. Demnach sind erhebliche Kostensteigerungen und Bevölkerungsausdünnungen bis zum Jahr um 2030 zu erwarten.

Nach der Auffassung der Vortragenden hat Börnsen auf Grund der besonderen Lage noch leichte Vorteile gegenüber mehr ländlichen Gemeinden. Doch auch unser Ort muss sich langfristig auf die Folgen der demografischen Entwicklung vorbereiten. Zu befürchten sind massive Leerstände in den Baugebieten und ausufernde Kosten durch Infrastrukturmaßnahmen.

Das Thema soll in den nächsten Ausschusssitzungen weiter vertieft werden. Spannende Frage aus Sicht der Grünen, die schon vor der Kommunalwahl 2008 vor einer übertriebenen Bautätigkeit auf dem Acker gewarnt hatten: Wird das Problem von den Mehrheitsfraktionen erkannt oder wird es ein ignorantes Weiter-So geben?

15. Juni 2009: Grüne Landtagsfraktion besucht Kita in Börnsen

Pressebericht
Die Kindertagesstätte Flohzirkus in Neu-Börnsen ist ein privater Kindergarten. Als eingetragener Verein wird er von den Eltern geführt. Die pädagogische Leiterin Ute Witt hat die Kita im Jahr 1992 gegründet. Derzeit werden hier 38 Kinder in zwei Gruppen von vier Fachkräften betreut. Am Montag dem 15. Juni machte eine Delegation der Landtagsfraktion von Bündnis 90/Die Grünen bei Ihrer Bereisung der Sachsenwaldgemeinden im Südkreis Herzogtum Lauenburg Station in der Kita Flohzirkus. Die Kieler Politiker konnten eine Gruppe von ca. 20 Kindern im Freien beim Spielen im Sand in Augenschein nehmen und waren angetan von der selbstständigen und harmonischen „Arbeit" bei der Gestaltung eines großen Sandberges im Garten.

Anlass des Kita-Besuches ist für die Grünen Landtagspolitiker die uneinheitliche Anwendung der Sozialstaffel bei einkommensschwachen Eltern. Karl-Martin Hentschel, Fraktionssprecher im Kieler Landtag, sagte: „Im Land herrscht bezüglich der Erstattung der Kita-Beiträge für Eltern mit geringem Einkommen ein Kuddelmuddel. Im Kreis Herzogtum Lauenburg erhalten Eltern nur die Minimalerstattung, obwohl viele andere Kreise anders verfahren." Eine Anfrage der Börnsener Grünen, vertreten durch die Fraktionssprecherin Maren Tormählen, beim Amt Hohe Elbgeest hatte ergeben, dass in der Gemeinde Börnsen die Anzahl der Anträge auf Beitragsermäßigung geringer ausfallen als im Durchschnitt. Monika Heinold von der Landtagsfraktion berichtete allerdings von einer Dunkelziffer betroffener Eltern: „Wir haben die Erfahrung gemacht, dass Mütter und Väter aus Gründen der Scham gar nicht beim Sozialamt vorstellig werden. Wir streben deshalb auch über einen Antrag im Landtag an, Kinder aus einkommensschwachen Haushalten vollkommen beitragsfrei zu stellen." Ute Witt konnte das bestätigen: „Viele nicht so gut situierte Eltern haben den verständlichen Ehrgeiz, die Beiträge selbst zu wuppen. Einige sind möglicherweise nicht richtig über ihre Rechte informiert. Hier würde ein Schreiben des Kreises gute Hilfe leisten."

Die Grünen lobten das pädagogische Konzept der Kita Flohzirkus. Ute Witt: „Kita ist die Vorbereitung auf die Schule. Wir legen Wert auf einen spielerischen Umgang mit Lernsituationen. Unsere Kinder haben daher einen stressfreien Schulbeginn. Wir wollen keine verweichlichte Generation. Deshalb zeigen wir den Kindern rechtzeitig ihre Grenzen auf. Was uns dringend fehlt, sind männliche Erzieher." Monika Heinold ergänzte: „Leider wird die Arbeit in der Kita nicht so anerkannt wie in der Schule. Staatliche Gelder fließen in die Schule, weniger in die Kita. Die Kita ist eine zentrale Bildungseinrichtung. Wir haben schon lange die Umwandlung als Familienzentrum vorgeschlagen." Auch das konnte Ute Witt bestätigen: „Wir sind häufiger gefordert, Eltern bei Problemen beratend zur Seite zu stehen."

25. Mai: Solaranlage auf dem Bürgerhaus – wir bleiben dran

In der Sitzung des Bauausschusses wurde von uns erneut das Thema Solaranlage auf dem Bürgerhaus ins Gespräch gebracht. Der Ausschuss stimmte unserem Vorschlag zu, zunächst eine kostenlose Begutachtung einer Firma über die Eignung des Daches einzuholen.

Zum   Öffnet einen internen Link im aktuellen FensterBericht

14. Mai 2009: Gemeinde kauft neuen Schlepper

Da das alte Gemeindefahrzeug abgängig ist, muss eine Neuanschaffung getätigt werden. Der Anschaffungspreis beträgt 135.987,88 Euro brutto. Das Gerät wurde von Mitgliedern des Bauausschusses ausgesucht und fachlich beurteilt. Die Anschaffung wurde auf der Gemeindevertretersitzung beschlossen.

Zum   Bericht der Sitzung der Gemeindevertretung

4. Mai 2009: Keine Windräder in Börnsen

Auf der Sitzung des Planungsausschusses wurde noch einmal wiederholt, was eigentlich jeder weiß: Es wird auf Börnsener Gebiet keine Windkraftanlagen geben. Grund ist die Ausweisung der Siedlungsfunktion für Börnsen durch die Regionalplanung. Auf Siedlungsachsen sind Windräder unzulässig.

Weitere Themen wurden von den Grünen in die Sitzung gebracht: Begegnungsstätte und Nutzung regenerativer Energien. Ein Bericht über die Sitzung findet sich   hier.

26. April 2009: Tschernobyl-Tag in Krümmel – 2000 waren dabei

Die Großkundgebung am Tschernobyl-Tag in Krümmel demonstrierte mit ca. 2000 Teilnehmern ein eindrucksvolles Bekenntnis zum Verzicht auf Atomkraft. Atomkraft ist gefährlich, Krümmel ist überflüssig, Wind und Solar statt Atomar, Sicher ist nur das Risiko – waren einige der zur Schau getragenen Parolen. Die Besucher waren sternförmig aus Schleswig-Holstein, Niedersachsen und Hamburg per Fahrrad, Bahn und Bus/PKW angereist, um vor dem Tor des Atomkraftwerkes für ein "Aus-bleibt-Aus!" zu demonstrieren.

Bilder von der Demo

2. April 2009: Treffpunkt für Bürger in Börnsen Fehlanzeige

Braucht Börnsen ein Begegnungszentrum? Wo und wie können sich Gruppen und Verbände zwanglos treffen? Wenn ja, wo wäre der geeignete Platz, welchen Umfang müsste das Zentrum haben und wer betreibt es?

Diese Frage wollen wir bei der öffentlichen Sitzung des Planungsausschusses am 4. Mai diskutieren.

In Börnsen gibt es zur Zeit nur Begegnungsmöglichkeiten, wenn sie vorgeplant sind. Waldschule und Bürgerhaus können belegt und genutzt werden. Angebote dazu bestehen allerdings nur zu besonderen Anlässen: z. B. beim Heimatfest, ansonsten bei Veranstaltungen der Vereine und Verbände.

In Börnsen fehlt aber ein Treffpunkt, der (in beschränktem Maße) jederzeit (ggf. auch nur an ausgewählten Tagen in der Woche) zugänglich ist. Der Betrieb eines solchen Zentrums sollte auch Angebote für unterschiedliche Altersgruppen haben. Insbesondere fehlt ein Raum für Vereine, Parteien, Jugendgruppen usw., der schnell ohne lange Voranmeldung und Schlüsselorganisation für Besprechungen zur Verfügung steht.

Zu den aktuellen Berichten der Ausschusssitzungen

9. März 2009: Umweltausschuss vertagt Entscheidung

Die auf der vorletzten Gemeindevertretersitzung von uns vorgelegten Anträge zum Landschaftsschutz und Wegebau waren in den Umweltausschuss überwiesen worden. Deren Mitglieder haben heute ebenso wie die Gemeindevertretung keine Entscheidung getroffen.

Beim Landschaftsschutz (siehe auch die Texte zum 12. Februar und 19. Januar weiter unten) waren sie offenbar überfordert. Trotz der von uns schon vor ca. 6 Wochen gelieferten Unterlagen und der damit verbundenen Beratungsfrist zeigte sich bei fast allen Unsicherheit. Das Ergebnis: Vertagung bis zur nächsten Sitzung, dann soll ein Vertreter der Naturschutzbehörde befragt werden.

Zur Realisierung und Finanzierung für die von uns gewünschte Instandsetzung des Waldweges zwischen Neu-Börnsen und Wohltorf/Aumühle gibt es zwei Lösungsansätze: 1. Über ein Förderprojekt durch die AktivRegion, 2. über Fördermittel aus dem Forstwegebauprogramm. Diskutiert wurde zunächst nur die 2. Variante. Als Voraussetzung zur Inanspruchnahme der Fördermittel muss der Weg zunächst in das Eigentum der Gemeinden überführt werden. Der jetzige Besitzer Kreis hat signalisiert, dass das zu einem symbolischen Preis geschehen könnte. Weil der Erwerb aber auch mit weiteren Pflegemaßnahmen verbunden ist, will das die Mehrheit der Gemeindevertreter offenbar nicht. Das Ergebnis: Der Bürgermeister soll mit den Bürgermeistern der anderen beteiligten Gemeinden sprechen und klären, ob dort eine Bereitschaft zur Beteiligung an dem einen oder anderen Lösungsansatz vorliegt.

Weitere Inhalte aus der Sitzung

12. Februar 2009: Biotopverbund soll im Umweltausschuss weiterbehandelt werden

Unser Antrag zur Ausweisung der Felder zwischen dem Naturschutzgebiet Dalbekschlucht und Börnsener Straße wurde in der Gemeindevertretersitzung in den Umweltausschuss verwiesen. Trotz gründlicher Vorarbeit von uns sah sich die Mehrheit der Gemeindevertreter nicht in der Lage, schon jetzt ein Votum für den Biotop- und Artenschutz zu geben. Die Verzögerung einer Entscheidung könnte dazu führen, dass weitere Bauanträge von Landwirten eingereicht werden. Die Verzögerung ist auch deshalb unverständlich, weil vor einem Jahr die Gemeindevertretung mehrheitlich genau diesen Erhalt der landwirtschaftlichen Flächen beschlossen hatte, nur unter einem anderen Namen.

Zum    Sitzungsbericht

19. Januar 2009: Schutz der Felder am Dalbekwald beantragt

Die landwirtschaftlichen Flächen zwischen Börnsener Straße und Buchenberg (s. u.) dürfen nicht zugebaut werden! Durch eine Fehlplanung der Gemeinde kommt es jetzt dort zum Bau einer Halle. Damit die restlichen Flächen für die Landwirtschaft und den Biotopverbund Dalbekwald-Felder erhalten bleiben, haben wir für die nächste Gemeindevertretersitzung (12. Februar) beantragt, ein Landschaftsschutzverfahren einzuleiten (siehe dazu auch die Meldungen zum 14. Juli und 27. Oktober weiter unten auf dieser Seite und den Wortlaut des >>Antrags).

In einem weiteren Antrag fordern wir die Einreichung des Ausbaus des Waldweges zwischen Börnsen und Aumühle/Wohltorf als Förderprojekt bei der AktivRegion Sachsenwald-Elbe (   Antrag).

5. Januar 2009: Plan zur Gestaltung des ehemaligen Hofgeländes vorgelegt

So ähnlich wie auf dem abgebildeten Plan soll das Gelände des ehemaligen Bauernhofes in der Dorfmitte in Zukunft gestaltet werden: 3 Einzelhäuser, 3 Doppel-Wohnungen und ein 6er-Reihenhaus. Die Zufahrt links unten mit den Besucherparkplätzen soll noch etwas nach Norden verschoben werden.

18. Dezember 2008: SPD verliert Sitz

Bei der Gemeindevertretersitzung hat der Bürgermeister den Austritt einer SPD-Abgeordneten aus der Fraktion mitgeteilt. Die Abgeordnete lässt ihre Mitgliedschaft in der Partei ruhen, verbleibt aber in der Gemeindevertretung.

Siehe auch unseren ausführlichen  Bericht

18. Dezember 2008: Gemeinde will Alleingesellschafter der GWB werden

Bei der Gemeindevertretersitzung gaben die Abgeordneten einstimmig grünes Licht für eine Neufassung des Gesellschaftervertrages der Gas- und Wärme-Dienst GmbH Börnsen (GWB).

Hintergrund: Bei der Gründung der GWB hatten die Gemeinde 60, die Hamburger Gas-Werke 40 Prozent der Anteile an der Gesellschaft. Nachdem die Gaswerke von E.on-Hanse aufgekauft worden waren, war E.on der Partner der Gemeinde. Auf Grund von Vertragsinhalten besaß E.on eine Reihe von Sperrminoritäten, von denen der Konzern auch kräftig Gebrauch machte. Aktuell besteht die Möglichkeit, dass die Gemeinde die E.on-Gesellschaftsanteile erwirbt.  Aus diesem Grund wurde der Bürgermeister beauftragt, einen Entwurf bis zum Frühjahr des nächsten Jahres vorzulegen.

Siehe auch unseren ausführlichen  Bericht

11. Dezember 2008: Bürgermeister räumt Versäumnisse ein

Die Gemeindevertretersitzung am 11. Dezember brachte einige Überraschungen. Während der Bürgermeister bei Versäumnissen seines Amtes sonst häufig Nichtwissen vorgibt oder andere Institutionen als zuständig hinstellt, musste er diesmal bei dem Vorwurf des Nicht-Tätigwerdens bei der Durchsetzung des Grünordnungsplans 21/21a passen. Er hätte das aus verschiedenen Gründen nicht schaffen können, so sein Eingeständnis.

Dazu hier noch einmal kurz der Sachverhalt. Der Grünordnungsplan zu den B-Plänen 21/21a sieht vor, dass eine Ausgleichsfläche eingerichtet wird. Diese Fläche sollte noch vor Beginn der Erschlließungsmaßnahme eingezäunt werden und im weiteren von einer Nutzung durch Baufahrzeuge und Ablagerungen geschützt werden. Nichts von dem ist passiert. Statt dessen sind dort Häuserschutt-Ablagerungen vorgenommen und niemals wieder vollständig beseitigt worden. Die Reste wurden einplaniert, als Naturfläche "verkauft" und so von der Gemeinde abgenommen. Wir haben jetzt also eine völlig verunreinigte Schuttfläche, die als Ausgleichs- und Naturfläche für ein Baugebiet dient. Das Schlimme ist, dass trotz permanenter Informationen und Anmahnungen durch Bürger sowohl Investor als auch der Bürgermeister und das Amt nicht das unternommen haben, was zur Umsetzung der Satzung der Grünordnung notwendig gewesen wäre. Aus unserer Sicht ein Skandal, der das Vertrauen in die Verwaltung aufs Tiefste untergraben hat.

Weitere Highlights: CDU und SPD tricksen gemeinsam bei der Wahl der Amtsvertreter, der Vorwurf des Bürgermeisters der nicht wahrheitsgetreuen Berichterstattung im Blatt Grün geht ins Leere, der Bürgermeister kennt die Höhe der Fördergelder für die AktivRegion nicht

Ein ausführlicher Bericht findet sich in unserer  Chronologie

Hey!

Du bist jung, GRÜN und stachelig?

Informationen über die GRÜNE Jugend SH findest Du im Internet unter www.gruene-jugend-sh.de oder per Mail buero@remove-this.gruene-jugend-sh.de .

Die Börnsener GRÜNEN!

BLATT GRÜN Börnsen 2|2020

Termine

Termine Kreisverband

Es gibt keine Veranstaltungen in der aktuellen Ansicht.

Nach oben

Terminkalender 2020

Grüne Kreistagsfraktion

GRUENE.DE News

Neues